| RATING | UPTO 80 Amp., UPTO 550V AC |
| CONSTRUCTION | S.S - 304 |
| DEG. OF PROT | IP:66 AS PER IEC 60529-2001 Ex'e' |
| GAS GROUP | IIC AS PER IS/IEC 60079-7:2015 INCREASED SAFETY Ex'e' |
| ZONE | ZONE 2 & ZONE 22 |
| TEMP. CLASS | T5 |
| CIMFR CERT. NO. | IN/CIMFR/TR20/3198 DTD.23/11/2020. |
| PESO CERT NO | A/P/HQ/MH/104/6733(P504225)DTD. 16/04/2021 |
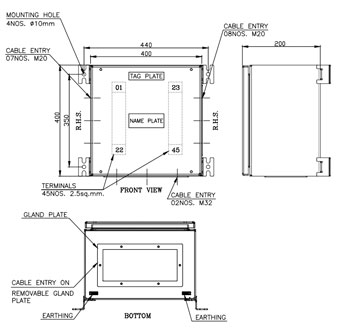
| EARTHING | 2NOS. EXTERNALS & 1NO. INTERNAL (M6) |
| TERMINAL | 45NOS. 2.5sq.mm. ELMEX MAKE. |
| CABLE ENTRY | AS PER CHART |
| HARDWARE | SS - 316 |
| WEIGHT | 2OKg |