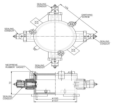
| RATING | UPTO 60 Amp., UPTO 500V AC OR UPTO 10 Amp.. UPTO 110V DC |
| CONSTRUCTION | IN CAST IRON |
| GAS GROUP | I AS PER IS/IEC 60079-1: 2014 Ex 'd' |
| DEG. OF PROT. | IP:65 AS PER IS/IEC 60529:2001 |
| CIMFR CERT NO | IN/CIMFR/TR21/4132 OTO. 22/02/2021 |
| BIS CERT NO | ENDORSEMENT NO. 132 OTO. 14/07/2021 |
| DGMS CERT | COAL MINES APPROVAL NO. 510 OF 2004 |
| BIS CERT | ENDORSEMENT NO. 128 OTO. 19/01/2021 |
| NO. EARTHING | 1NO. INTERNAL & 2NOS. EXTERNALS |
| PAINT | EPOXY POWDER COATED SILVER GREY SHADE {HAMMER TONES/STRUCTURE TYPE) |
| TERMINAIS | TO BE SPECIFY, ELMEX/CONNECTWELL MAKE. |
| CABLE | TO BE SPECIFY, WITHOUT CABLE GLANDS & WITHOUT PLUGS. |
| ENTRY HARDWARE | S.S-304 {ONLY NUTS & BOLTS.) |