| RATNG | UPTO 400 Amp. UPTO 500V AC OR UPTO 110 Amp. UPTO 230V DC. |
| CONSTRUCTION | IN AL. ALLOY LM6 |
| GAS GROUP | IIC AS PER IS/IEC 60079-1:2014, Ex 'd' |
| ZONE | ZONE 1&2 |
| TEMP CLASS | T5 |
| DEG OF PROT. | IP: 66 AS PER IS/IEC 60529:2001 |
| CIMFR CERT. N0 | IN/CIMFR/TR20/3190 DTD. 09/11/2020. |
| PESO CERT. N0. | A/P/HQ/MH/104/6734 (P501680) DTD.21/04/2021. |
| BIS CERT. N0. | ENDORSEMENT NO. 128 DTD.19/01/2021. |
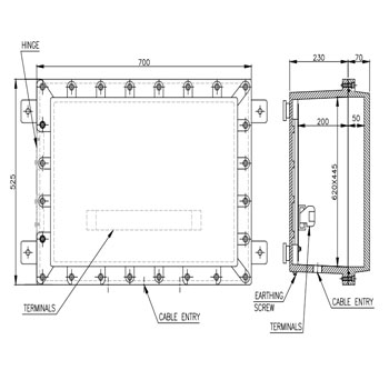
| EARTING | 1NO. INTERNAL & 2NOS. EXTERNALS |
| PAINT | EPOXY POWDER COATED LIGHT GREY SHADE 631 OF IS: 5 |
| TERMINAL | TO BE SPECIFY, ELMEX/CONNECTWELL MAKE. |
| CABLE ENTRY | TO BE SPECIFY, WITHOUT CABLE GLANDS & WITHOUT PLUGS. |
| HARDWARE | S.S-304 (ONLY NUTS & BOLTS) |